 
Volver
SOLICITAR VISITA
REFERENCIA: 1601/1286 - Piso en venta en Picassent (Valencia).
- Precio de Venta: 245.000 €
ALFA SILLA INMOBILIARIA. Te presenta EN EXCLUSIVA estupendo piso en Picassent. 
Amplia vivienda de 3 habitaciones en excelente ubicación – ¡Listo para entrar a vivir!
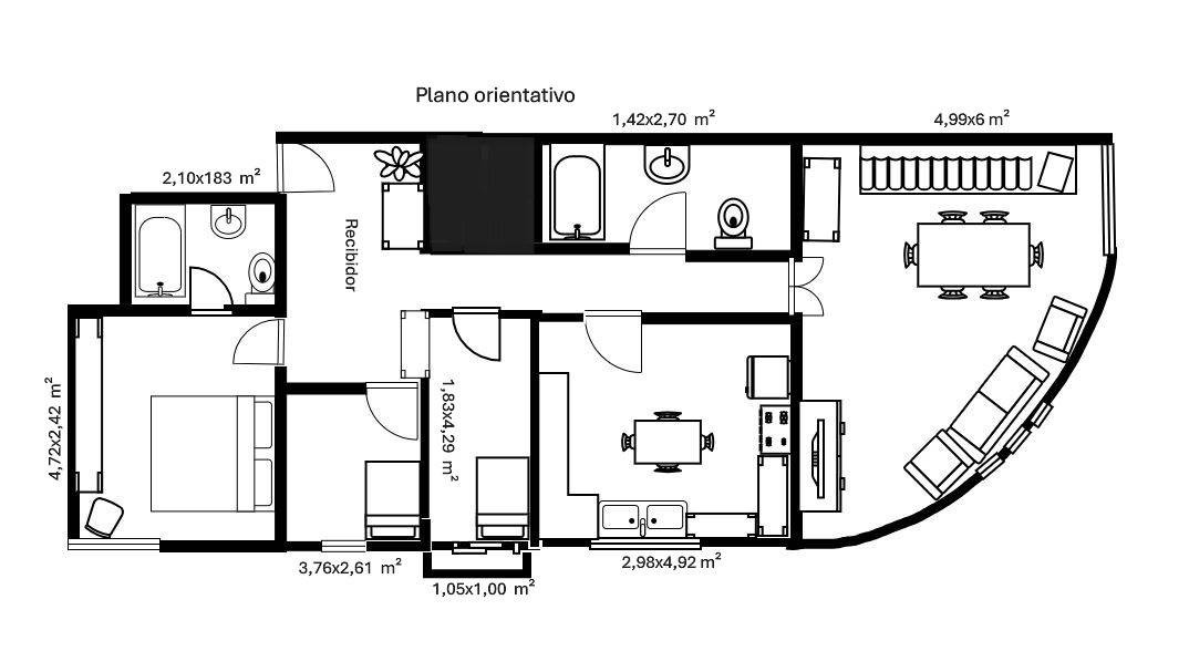
Descubre esta magnífico hogar de 122 m² construidos y 109 m² útiles, situada en una tercera planta con ascensor de un edificio construido en 1993. Un hogar que destaca por su espacio, luz natural y excelente distribución, ideal para familias o quienes buscan comodidad sin renunciar a la cercanía con Valencia.
La vivienda cuenta con:
-3 amplias habitaciones, cada una de ellas con armarios empotrados que ofrecen una solución de almacenamiento práctica y ordenada.
-2 baños completos con bañera, perfectos para el uso diario o para relajarse al final del día.
-Un salón-comedor de unos 30 m² muy amplio y luminoso, con una gran estantería diseño bouiseri de madera ideal para organizar libros y objetos decorativos, con espacio más que suficiente para crear distintos ambientes (zona de descanso, comedor, teletrabajo...).
-Cocina independiente, funcional de casi 15 m² y gran capacidad de almacenaje, ideal para los amantes de la cocina.
-Balcón exterior, perfecto para disfrutar del aire libre o tomar un café por la mañana.
-Dos equipos de aire acondicionado frío/calor, que garantizan el confort durante todo el año.
Este piso se encuentra en una zona consolidada y muy demandada, rodeada de todos los servicios: supermercados, farmacias, centros educativos, parques, restaurantes y transporte público (metro), lo que facilita una vida cómoda y bien conectada, con acceso rápido a Valencia capital.
Una oportunidad única de vivir en un entorno urbano sin renunciar al confort y la tranquilidad.
¡LA VIVIENDA SE VENDE SIN AMUEBLAR.!
¡EL PRECIO DE VENTA DEL INMUEBLE NO INCLUYE GASTOS DE COMPRAVENTA, FINANCIACIÓN, IMPUESTOS NI HONORARIOS DE LA INMOBILIARIA.!
Amplia vivienda de 3 habitaciones en excelente ubicación – ¡Listo para entrar a vivir!
Descubre esta magnífico hogar de 122 m² construidos y 109 m² útiles, situada en una tercera planta con ascensor de un edificio construido en 1993. Un hogar que destaca por su espacio, luz natural y excelente distribución, ideal para familias o quienes buscan comodidad sin renunciar a la cercanía con Valencia.
La vivienda cuenta con:
-3 amplias habitaciones, cada una de ellas con armarios empotrados que ofrecen una solución de almacenamiento práctica y ordenada.
-2 baños completos con bañera, perfectos para el uso diario o para relajarse al final del día.
-Un salón-comedor de unos 30 m² muy amplio y luminoso, con una gran estantería diseño bouiseri de madera ideal para organizar libros y objetos decorativos, con espacio más que suficiente para crear distintos ambientes (zona de descanso, comedor, teletrabajo...).
-Cocina independiente, funcional de casi 15 m² y gran capacidad de almacenaje, ideal para los amantes de la cocina.
-Balcón exterior, perfecto para disfrutar del aire libre o tomar un café por la mañana.
-Dos equipos de aire acondicionado frío/calor, que garantizan el confort durante todo el año.
Este piso se encuentra en una zona consolidada y muy demandada, rodeada de todos los servicios: supermercados, farmacias, centros educativos, parques, restaurantes y transporte público (metro), lo que facilita una vida cómoda y bien conectada, con acceso rápido a Valencia capital.
Una oportunidad única de vivir en un entorno urbano sin renunciar al confort y la tranquilidad.
¡LA VIVIENDA SE VENDE SIN AMUEBLAR.!
¡EL PRECIO DE VENTA DEL INMUEBLE NO INCLUYE GASTOS DE COMPRAVENTA, FINANCIACIÓN, IMPUESTOS NI HONORARIOS DE LA INMOBILIARIA.!
- Calificación consumo de energía: E.
- Consumo de energía (kwh/m2 año): 120.
- Calificación de emisiones CO2: E.
- Emisiones CO2 (kg CO/m2 año): 20.
- Piso: planta 3.
- Año de construcción: 1.993.
- Área total construida: 122 m2.
- Área total útil: 109 m2.
- Habitaciones: 3.
- Baños: 2.
- Ascensores: 1.
- Estado de conservación: buen estado.
- Interior/exterior: exterior.
- Orientación: suroeste.
- Amueblado: sin amueblar.
- Comunidad: 60 €.
Datos de contacto
- Oficina: 1601 - Alfa Silla
- Dirección: Avda. De La Plana 2 bajo (Silla - Valencia)
- Teléfonos: 674 216 516 / 644 190 365
- Whatsapp: 644 190 365
- Email: [email protected]
- Web: www.alfasilla.com
Localización
Hoja informativa. No incluidos gastos de Escrituración, Registro e Impuestos.
La oficina 1601, Avda. De La Plana 2 bajo (Silla - Valencia) con nombre fiscal Prensa Gestión de Fincas, S.L y CIF: B98796048
es responsable de los datos e información publicitados de este inmueble.
La oficina 1601, Avda. De La Plana 2 bajo (Silla - Valencia) con nombre fiscal Prensa Gestión de Fincas, S.L y CIF: B98796048
es responsable de los datos e información publicitados de este inmueble.



















